Addison Way, Hampstead Garden Suburb, NW11 Addison Way, Hampstead Garden Suburb, NW11

Addison Way, Hampstead Garden Suburb, NW11

2 bedroom Maisonette Sold STC

£400,000

  • 2 bedrooms
  • 1 bathroom
  • 1 reception

Key Features

  • Two bedroom
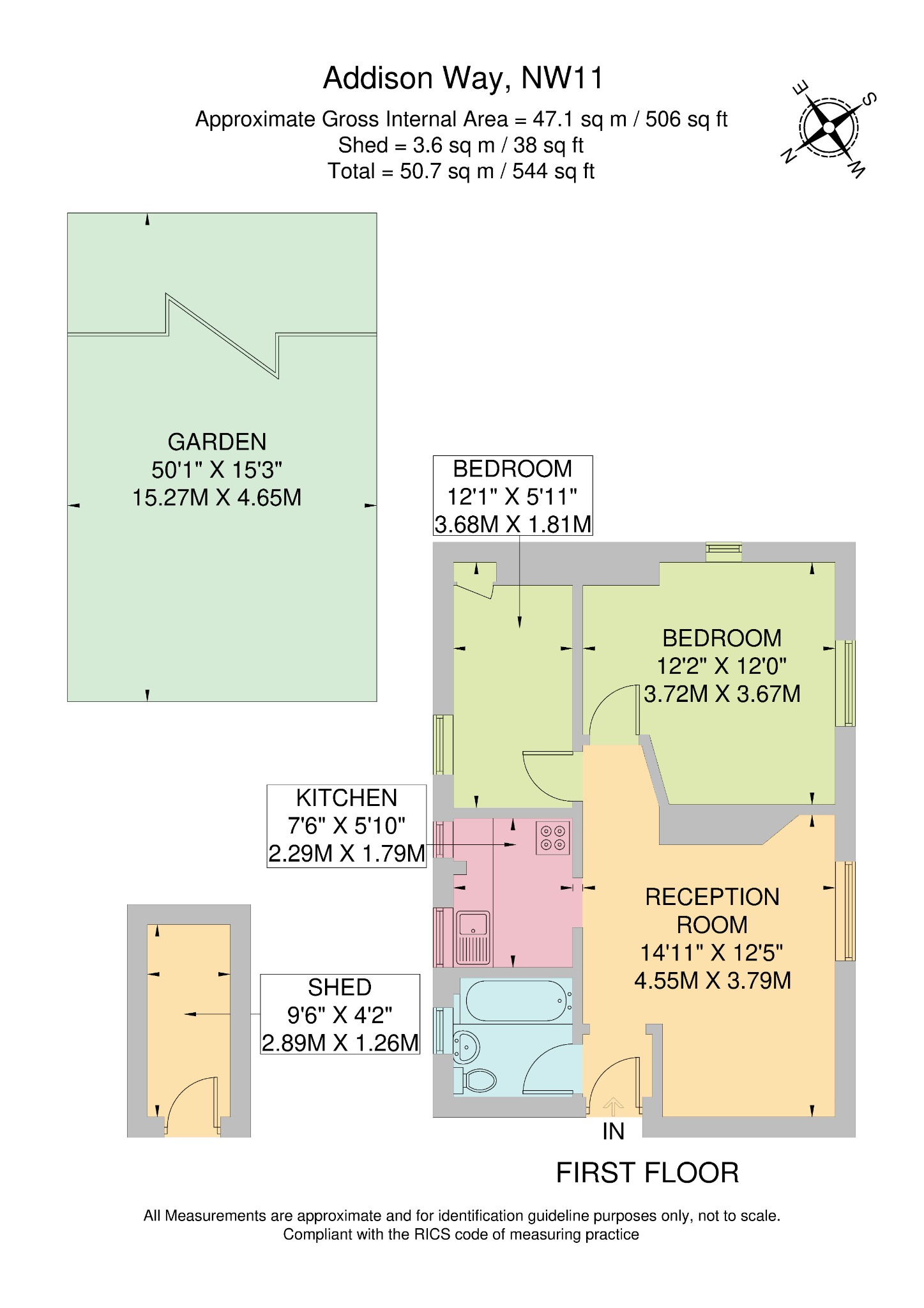
  • 583 sq ft / 54.2 sq m
  • Private Garden
  • Close to local amenities
Book a viewing 0208 381 4970 Book an In Person Valuation Instant Valuation

Description

A bright and well-presented two-bedroom first-floor apartment measuring approximately 544 sq ft (50.7 sq m including shed), exclusively listed with Moreland and ideally positioned on Addison Way in the heart of the Hampstead Garden Suburb. The property offers well-balanced accommodation within a peaceful residential setting, close to local amenities and green open spaces.

The apartment comprises a generous 14'11" x 12'5" reception room with wood flooring and a pleasant outlook, alongside a separate fitted kitchen (7'6" x 5'10") offering practical storage and worktop space. There are two bedrooms, including a well-proportioned principal bedroom and a second ideal as a guest room, child’s room or home office. A modern family bathroom and hallway storage complete the layout.

Further benefits include access to a large private garden and a private bricked out shed fitted with electricity, providing useful external storage or for turning into an external office space.

Well located for Golders Green Station (Northern Line), the apartment enjoys excellent transport links, with easy access to local shops, cafés and everyday conveniences. Nearby Hampstead Heath, Golders Hill Park and the wider Hampstead Garden Suburb offer outstanding green spaces.

An ideal first home, downsizing option or rental investment in one of NW11’s most sought-after residential locations.

Tenure: Leasehold
Tenure Length: 103 Years Remaining
Service Charge: £1,068.58 Per Annum
Ground Rent: £10 Per Annum


Location


Floorplan

Floorplan

EPC

EPC for Addison Way, Hampstead Garden Suburb, NW11

Moreland Estate Agents

903-905 Finchley Road Golders Green NW11 7PE

Similar Properties

Asmuns Place, Hampstead Garden Suburb, NW11
For Sale

Asmuns Place, Hampstead Garden Suburb, NW11

3 Bed Cottage For Sale
Guide price Guide Price £800,000
Crescent Court, Golders Green, NW11
For Sale

Crescent Court, Golders Green, NW11

4 Bed Apartment For Sale
Guide price Offers over £600,000
The Vale, Golders Green NW11
For Sale

The Vale, Golders Green NW11

4 Bed Semi-detached house For Sale
Guide price Guide Price £1,250,000